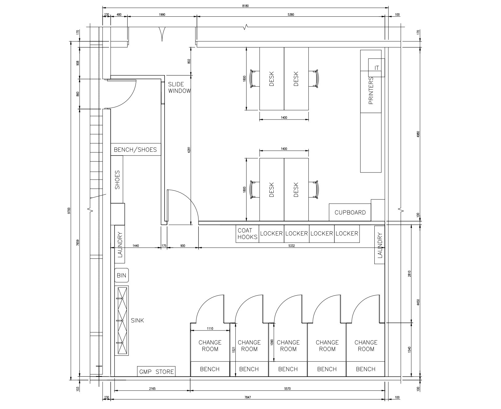
High Hygiene Manufacturing Site Change Room

 

Designed and constructed a new changeroom entry for a high hygiene manufacturing area.

Technical consultation was provided on civil works, HVAC and layout design to ensure adequate partitioning of internal building and hygiene spaces for improved GMP.

Project management services provided include engagement and monitoring of contractor installation work, procurement capabilities, and management of the CDC approval process.

Previous
Previous

Dairy Site Acid CIP Capability

Next
Next

Brewery Acid Wash CIP Upgrade